éducation et enseignement

CRÈCHE HALTE- GARDERIE

BOUZIGUES (HERAULT)


Maître d’ Ouvrage

COMMUNE DE BOUZIGUES

SE.MA.BA.TH


Architecte

AJM ARCHITECTURE

Franc Monier et François Jannin, architectes

avec Verena Firner, architecte


Missions de la Maîtrise d’Oeuvre

mission de base


Livraison

décembre 2006


Coût de l’opération

312 173  euros hors taxes


Surface Hors Oeuvre

240 m2

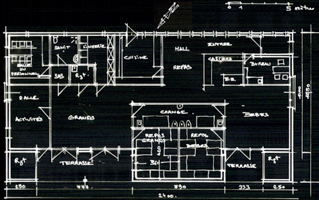
Le projet de la construction neuve d’une crèche halte garderie pour une vingtaine d’enfants renforce l’entrée du village de Bouzigues.

Les pièces de services sont distribuées par le Nord et protègent du vent et du bruit les zones réservées aux enfants.


Les transparences intérieures permettent la surveillance et les échanges entre enfants d’âge différents.